在售
寰·誉143㎡B户型
寰·誉143㎡B户型 4室2厅1厨2卫
1862万建筑面积143.00㎡
寰·誉143㎡A户型
寰·誉143㎡A户型 4室2厅1厨2卫
寰·誉143㎡C户型
寰·誉143㎡C户型 4室2厅1厨2卫
睿·誉128㎡
睿·誉128㎡ 4室2厅1厨2卫
1666万建筑面积128.00㎡
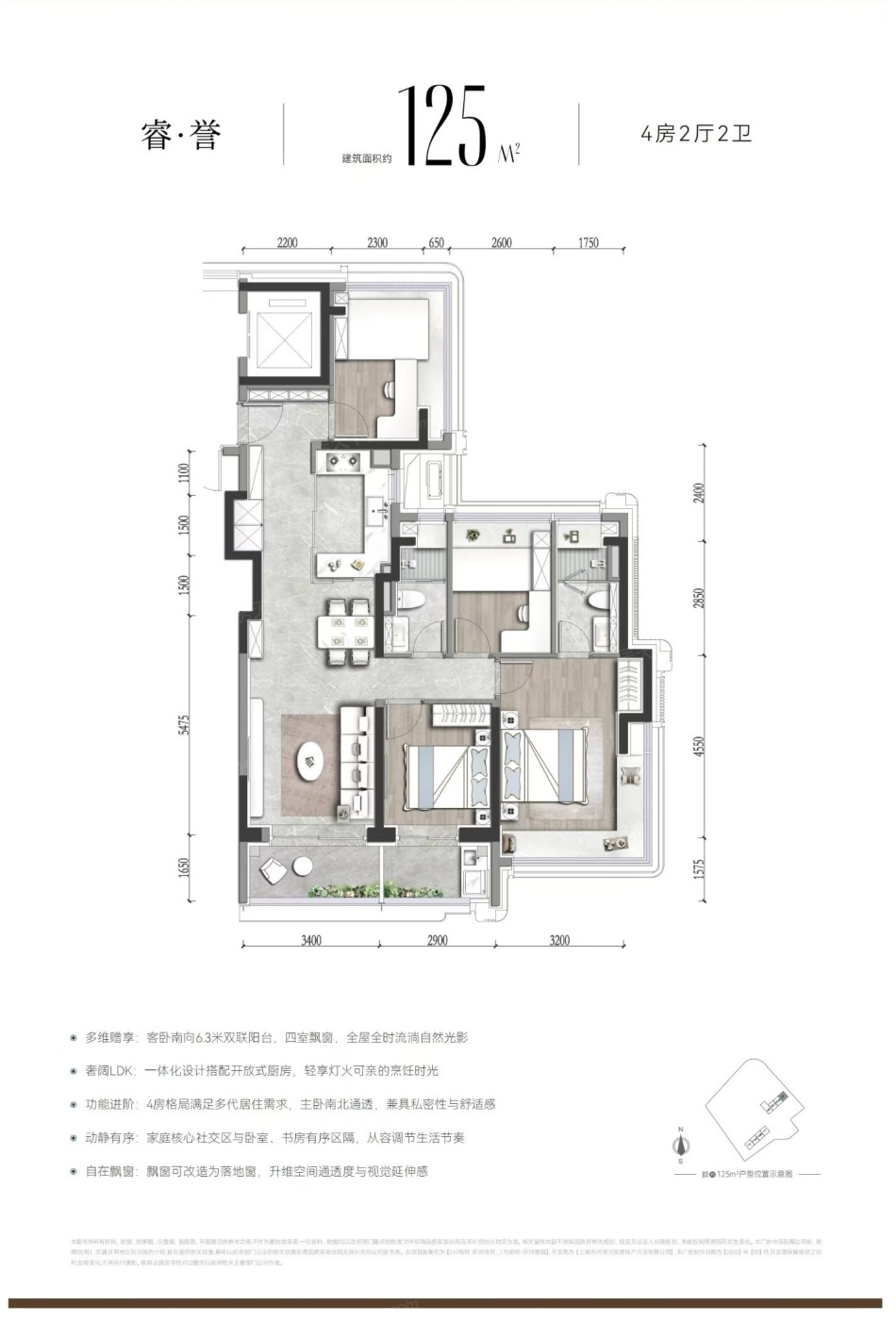
睿·誉125㎡
睿·誉125㎡ 4室2厅1厨2卫
1627万建筑面积125.00㎡